KNIGHTLY VIRTUES SERVING TO PROTECT YOUR CASTLE FROM INVADERS

How May We Help You

Termite/WDIR Inspections

Our in-depth termite inspections incorporate the latest technology and best industry practices to meet termite inspection requirements for VA loans.

Learn More

TERMITE TREATMENTS

We offer the ultimate protection from termites using inspections and guaranteed effective treatments that suit your specific needs.

Learn More

Pest Control

Our integrated pest management (IPM) approach aims for long-term prevention of pest problems using a combination of techniques.

Learn More

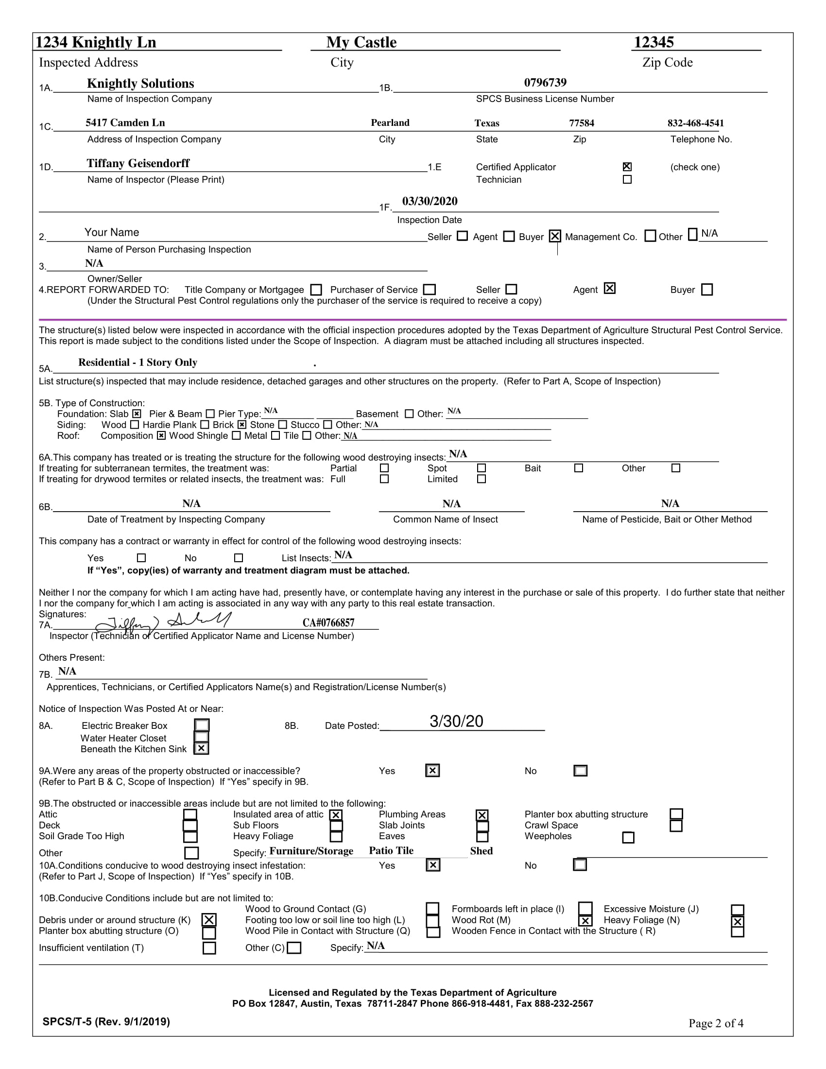
Texas Wood Destroying Insect Report (WDIR).

View an Example

CLIENT’S TESTIMONIALS

Don't just take our word for it. Hear what our clients have to say!

REQUEST FREE PEST INSPECTION OR CALL US

Hours of Operation

  • Monday :7:30 am - 5:30 pm
  • Tuesday :7:30 am- 5:30 pm
  • Wednesday :7:30 am- 5:30 pm
  • Thursday :7:30 am- 5:30 pm
  • Friday :7:30 am- 5:30 pm
  • Saturday :By appointment
  • Sunday :By appointment

Service Areas

  • Greater Houston & Surrounding Areas
  • Austin County